Каталог
Газовый котел SINTESI 150
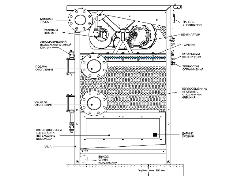
Секционный конденсационный котел с высоким коэффициентом модуляции мощности. Котел состоит из соединенных между собой секций (от 2 до 11 шт), отлитых из сплава алюминия, магния и кремния. Каждая секция оборудована собственной премиксной горелкой с коэффициентом модуляции мощности 1:5. Все секции внутри котла объединены в систему каскадного управления, поэтому максимальный коэффициент модуляции мощности одного котла может доходить до 1:55. Кроме того, котлы могут каскадироваться между собой в неограниченном количестве (с использованием дополнительной автоматики). Использование премиксных горелок обеспечивает низкие выбросы оксидов азота, а возможность работы в конденсационном режиме высокий КПД. Выпускается 12 типоразмеров, номинальной тепловой мощностью от 100 до 1188 кВт.
- Максимальная рабочая температура в котле 95°C.
- Очень компактный и легкий котел.
- Возможность управления различными компонентами системы теплоснабжения: контуры отопления со смесительными клапанами и без, бойлеры аккумуляторы ГВС, пластинчатые теплообменники ГВС и др. (с использованием штатной автоматики и дополнительных аксессуаров для ее расширения).
- Высокий коэффициент модуляции мощности, высокий КПД, низкие выбросы вредных веществ, низкий вес, малый объем воды, низкий уровень шума и вибрации, простота технического обслуживания делают данные котлы оптимальными для использования в крышных котельных многоэтажных зданий.

